Onassis Group位于希腊雅典,该集团办公空间于2022年由Tenon Architecture重新18luck新利全站 。
该项目需要翻新位于雅典奥纳西斯集团总部的办公空间。其指导原则是把木材创新性地将有机形式和干净线条并置于室内。
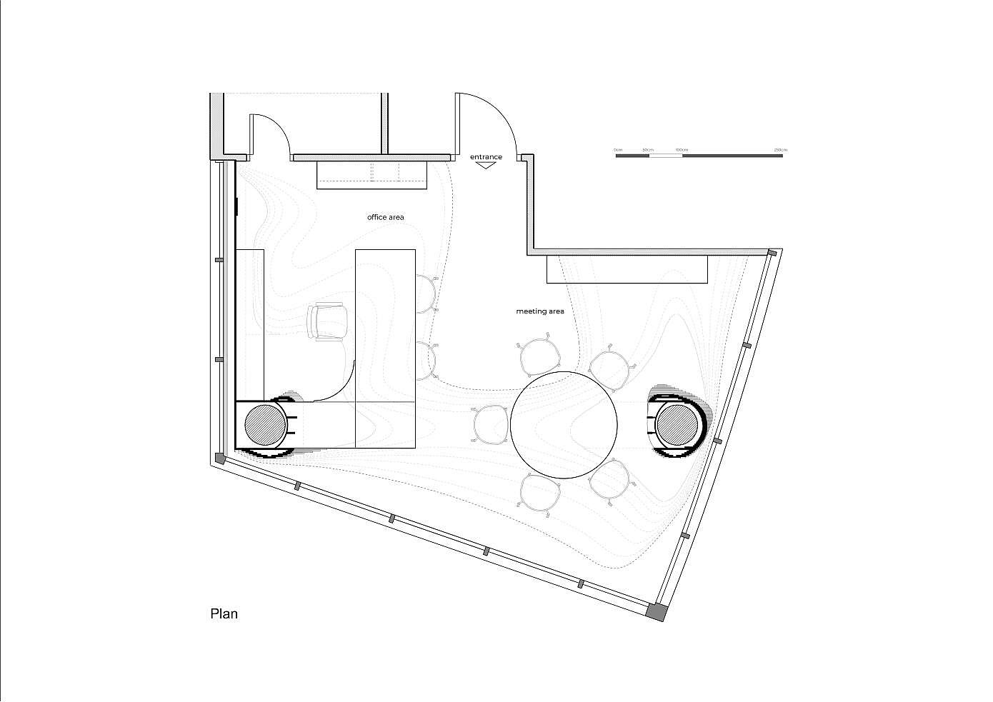
该方案的主要元素是一个从海底汲取灵感的雕塑胶合板结构,覆盖了两个预先存在的承重柱和部分天花板。与此形成鲜明对比的是,定制家具的18luck新利全站 采用了坚固的几何形状,满足了重点工作区和协作会议区的功能需求。
构成该方案的两个并列系统所采用的不同方法、材料和施工技术也突显了室内的双重性。对流体胶合板结构形式的初步研究需要进行粘土试验和抽象3D建模,同时考虑到其与现有结构的关系和装修完成后的功能区间。最终的形状被算法分析成层和模块,由桦木胶合板制成,然后用数控机床切割成总共751块。相比之下,家具被当作一个更简约的系统来处理,牢固地建立在功能基础上,并使用坚实的枫木和传统木工工艺制造。
从概念到制造,这两个系统被有意地视为对立的元素,由此产生的空间是一个和谐的内部,从微妙的对比中获得温暖和清晰。



















全部评论